PHOTOS: November’s Featured Home: The Luna!
- pkiryk
- Nov 17, 2025
- 2 min read
We are excited to showcase one our favorite modes from our Modern Collection - meet the Luna! As November’s Featured Home of the Month, this beauty is a preferred single level home, is 2301 square feet and has 3 beds and 2.5 baths.
Why the Luna?
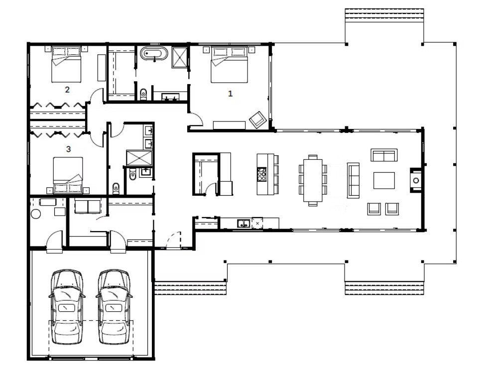
Let’s head right in and start by taking a look at the floor plan:
As you can see, everything was planned perfectly for those looking to build a single level home: You can see the primary bedroom is located onto the same side of bedroom 2 and 3, with the kitchen, living and dining rooms wide open. A small car garage is a perfect option for this elegant modern style home.
Let’s take a look at the exterior!
And taking a look inside…
Another nice aspect of the level is the fact that it is a one level home. Why is a single level home so desirable? This layout style continues to rise in popularity all across North America. Many. Homeowners appreciate the way each space is accessible without climbing stairs! In addition, a single story is easier to maintain, convenient, has a better flow for entertaining and is future living
Building a modern home like the Luna is a lifestyle choice. Many homeowners like the feel of a calming and uncluttered home with clean lines, a ton of natural light, is more energy efficient and like all Timber Block homes, has advanced construction.
If you want to talk to us about the Luna, or any of our dozens of models, please contact us anytime (or visit us in person!) You can see our hours, locations and other contact information HERE.














Comments